Dom Bochnia Centrum, Rynek
Bochnia Pokaż na mapie ›
Dodane: Środa, 05 Listopad, 2025 02:11
4 000 000 zł
10256 zł/m2
Szczegóły ogłoszenia
- Kategoria: Domy / Sprzedaż
- Powierzchnia:390 m2
- Liczba pokoi:2 pokoje
- Pow. działki:637 m2
- Rynek:Wtórny
- Rok budowy:1920
- Sprzedaż:Pośrednik
- Cena: 4 000 000 zł / 10256 zł/m2
Opis oferty
|Kamienica z potencjałem w samym sercu Bochni - przy rynku!
Na sprzedaż wyjątkowa kamienica z 1920 roku , położona w prestiżowej lokalizacji - tuż przy bocheńskim rynku , w otoczeniu punktów usługowych, sklepów i restauracji. To doskonała propozycja zarówno dla inwestora, jak i osoby poszukującej miejsca na działalność gospodarczą w reprezentacyjnym miejscu.
Nieruchomość:
-Powierzchnia działki: 637 m
-Powierzchnia użytkowa: ok. 390 m + poddasze do adaptacji
-Piwnica: tak
-Ogród i miejsca parkingowe - niewątpliwy atut w tej lokalizacji!
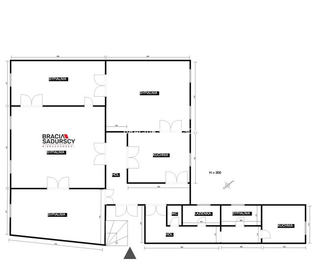
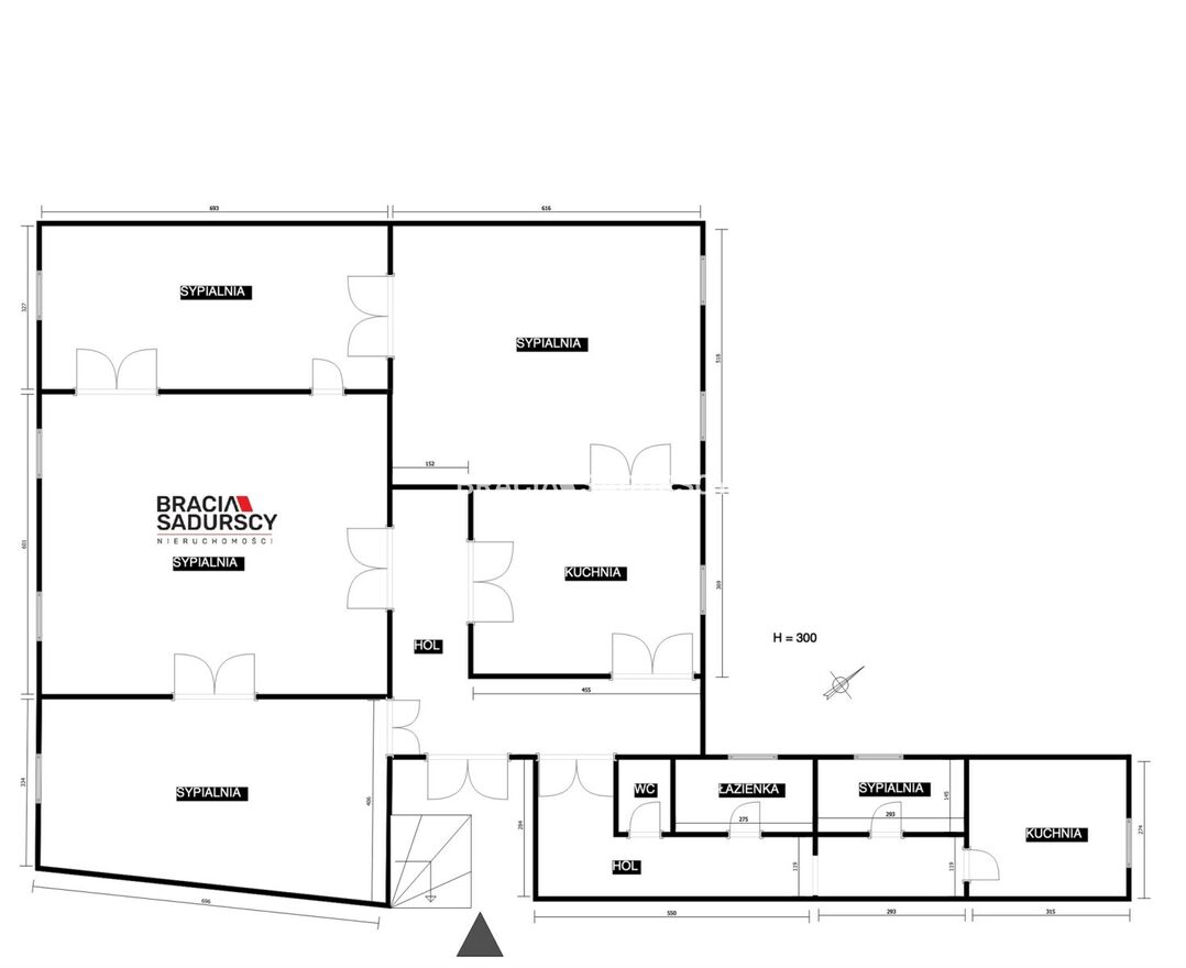
Rozkład pomieszczeń:
Parter:
-Lokal usługowy o pow. 70 m (obecnie wynajęty piekarni)
-Lokal użytkowy o pow. 50 m
-Oficyna od strony podwórka - 30 m
Piętro:
-4 przestronne pokoje (41,5m, 32m, 26m, 22m)
- Kuchnia (17m)
- 4 mniejsze pomieszczenia (druga kuchnia, spiżarnia, łazienka, WC, hol o łącznej powierzchni ok 32m)
Strych:
- Duża przestrzeń z potencjałem na adaptację - możliwość stworzenia mieszkań, biur lub apartamentów na wynajem.
Dodatkowe atuty:
- Zielony, prywatny ogród z możliwością parkowania
- Pełne media: prąd, woda, kanalizacja, centralne ogrzewanie gazowe
- 2 Wejścia bezpośrednio z ulicy (pierwsze bezpośrednia z centrum, drugie od strony ogrodu z bramą wjazdową na teren posesji
-doskonała ekspozycja - północny zachód i południowy wschód.
-Budynek z ogromnym potencjałem inwestycyjnym
-Nieruchomość stanowi doskonałą propozycję dla inwestora poszukującego projektu z dużym potencjałem rozwoju i wzrostu wartości. Kamienica, położona w ścisłym centrum Bochni - tuż przy rynku - gwarantuje stabilność lokalizacji oraz wysoki popyt zarówno na lokale usługowe, jak i mieszkalne.
Obiekt posiada ogromne możliwości adaptacyjne. Układ pomieszczeń pozwala na wydzielenie kilku niezależnych lokali mieszkalnych lub apartamentów na wynajem krótko- i długoterminowy , co w połączeniu z rosnącym zainteresowaniem turystycznym regionu czyni z niej atrakcyjną inwestycję o dużym potencjale zwrotu.
Dodatkowym atutem jest funkcjonujący lokal usługowy z najemcą , zapewniający natychmiastowy przychód oraz bezpieczeństwo finansowe od pierwszego dnia inwestycji. Pozostała część parteru oraz poddasze pozostają do zagospodarowania według indywidualnej koncepcji - np. pod biura, gabinety, butik .
Warto podkreślić, że duży strych daje możliwość uzyskania dodatkowej powierzchni użytkowej, co znacząco podnosi wartość nieruchomości po modernizacji. Nieruchomość wyposażona jest we wszystkie media i posiada zielony ogród z miejscami parkingowymi , co w tej części miasta stanowi wyjątkowy atut.
Kamienice w ścisłych centrach historycznych miast takich jak Bochnia zyskują na wartości z każdym rokiem. Inwestycja w tę nieruchomość to nie tylko szansa na atrakcyjny zwrot kapitału, ale również możliwość stworzenia prestiżowego obiektu o unikalnym charakterze, łączącego funkcję mieszkaniową i komercyjną.
Idealna lokalizacja pod:
-bank, aptekę, kancelarię, gabinet medyczny, butik
-salon fryzjerski, kosmetyczny lub sklep spożywczy
-adaptację na mieszkania lub apartamenty na wynajem
Otoczenie:
Kamienica znajduje się w ścisłym centrum Bochni, w otoczeniu punktów handlowych, usługowych i kulturalnych. Lokalizacja ta gwarantuje stały przepływ klientów oraz doskonałą rozpoznawalność adresu.
Stan budynku:
Kamienica w stanie do remontu - co daje szerokie możliwości aranżacyjne i inwestycyjne.
Cena : 4 000 000zł do negocjacji
Zapraszam na prezentację!
Więcej informacji
Kuba Obcowski
+ 48 510 - pokaż numer telefonu -
@
Biuro ''Bracia Sadurscy'' pomaga otrzymać najkorzystniejszą ofertę kredytową na zakup nieruchomości. Dla naszych klientów umowa przedwstępna notarialna bezpłatna.
Oferujemy naszym klientom gwarancję zwrotu zadatku przy zakupie kredytowym!
Prezentacja nieruchomości jest bezpłatna i odbywa się w obecności pośrednika. Warunkiem jej przeprowadzenia oraz podania lokalizacji jest podpisanie umowy pośrednictwa, zgodnie z przepisami i oczekiwaniami właściciela nieruchomości.
::DODATKOWE INFORMACJE |
Dozór budynku: możliwy |
Prąd: jest |
Gaz: jest |
Woda: jest |
Dojazd: asfalt |
Otoczenie: działki zabudowane |
Ogrzewanie: gazowe |
Kanalizacja: tak |
Linie telefoniczne: TAK |
Komunikacja publ.: MPK, kolej, autobus miejski, tak, PKS, PKP, komunikacja podmiejska, autobus |
Winda: NIE |
Klimatyzacja: TAK |
Recepcja: TAK |
Sieć komputerowa: TAK |
Wysokość kondygnacji : 3 |
Typ powierzchni opis: Mieszkalno-usługowa |
Możliwość parkowania: tak |
Własny parking: TAK |
Wejście: od ulicy |
Liczba wejść: 2 |
Podłogi: wylewka |
Położenie obiektu: centrum |
Teren ogrodzony: TAK |
Podłogi podwyższone: Nie |
Główni najemcy: Piekarnia |
Pow. całk. budynku : 390 |
Pow. całk. biurowa : 390 |
Pow. całk. handlowa : 130 |
Opłaty wg liczników: woda, prąd, gaz |
Opł. ekspl. /m2: 0 |
Opł. za miejsce parking. naziemne: 1 |
Rok budowy: 1920 |
Pow. każdej kondyg. : 190 |
Wyposażenie biura: we własnym zakresie |
Liczba pomieszczeń biurowych: 2 |
Powierzchnia pomieszczeń biurowych od : 130 |
Powierzchnia pomieszczeń biurowych do : 390 |
Pow. pom. handlowych od : 130 |
Pow. pom. handlowych do : 390 |
Liczba pomieszczeń magazynowych: 3 |
Liczba pomieszczeń socjalnych: 3 |
Liczba pomieszczeń sanitarnych: 5 |
::LINK DO STRONY |
sadurscy.pl/offer/BS5-BS-312845
::KONTAKT DO AGENTA |
Jakub Obcowski |
+48 510 - pokaż numer telefonu - |
@
::DANE BIURA |
Oddział BS5, Nowa Huta |
Bracia Sadurscy Dariusz Sadurski |
Os. Kazimierzowskie 36 |
31-844 Kraków |
12 265 10 29
Pośrednik odpowiedzialny zawodowo za wykonanie umowy pośrednictwa: Dariusz Sadurski (licencja nr: 803)
|
Oferta wysłana z systemu Galactica Virgo
Numer oferty: BS5-BS-312845
Powiadom o podobnych ogłoszeniach
Lokalizacja: Bochnia
Kategoria: Nieruchomości » Domy » Sprzedaż
Cena: od 3400000 zł do 4600000 zł Powierzchnia : od 332 m2 do 449 m2
Chcę otrzymywać powiadomienia o nowych ofertach
- Wypromuj ogłoszenie
- Zgłoś naruszenie
- Drukuj ulotkę
- Edytuj/usuń ogłoszenie
- Udostępnij ogłoszenie
- Dodaj na Facebook






























